Opcje wyszukiwania

Ogłoszenie! Lokale użytkowe w Warszawie przy ul. Strumykowej 4

Numer aukcji: 82/PK/AU/2020
Nowa cena
Właściciel
PKO Leasing S.A. - old
Regulaminy sprzedawcy
Cena wywoławcza
550 000,00 PLN
Typ ceny
netto
Cena minimalna
Została osiągnięta Nie została osiągnięta
Tryb licytacji
sprzedaż ofertowa
Najniższa cena wywoławcza z ostatnich 30 dni
550 000,00 PLN
Lokalizacja
Warszawa, Strumykowa 4
Pokaż na mapie
Forma sprzedaży
umowa kupna-sprzedaży
Nr nieruchomości

Dane podstawowe

Typ nieruchomości
Lokale użytkowe w Warszawie
cena za m2
4814,58 zł/m2
Powierzchnia użytkowa
160,18 m2
Piętro / Liczba pięter
parter
rok budowy
2010

Wyposażenie

Dodatkowy opis

Samodzielne lokale użytkowe nr U3 i U5 zlokalizowane w budynku mieszkalnym wielorodzinnym położonym przy ul. Strumykowej 4 w Warszawie, województwie mazowieckim.

Lokale znajdują się w kompleksie trzech budynków mieszkalnych wielorodzinnych, wybudowanych w technologii tradycyjnej w 2010 r. Stan wykończenia lokali deweloperski. Lokale są połączone.
Wyposażenie budynku w instalacje: elektryczną, wodociągową, kanalizacyjną, gazową z sieci miejskiej, c.o. indywidualne lub z sieci miejskiej, wentylacja grawitacyjna.

Lokalizacja:

Nieruchomość położona jest w dzielnicy Białołęka na osiedlu Nowodwory, przy ulicy Strumykowej w kwadracie ulic Strumykowa, Książkowa, Mehoffera. Dojazd do nieruchomości głównymi arteriami komunikacyjnymi miasta. Sąsiedztwo stanowi zabudowa mieszkaniowa wielorodzinna oraz tereny usług. Wjazd na nieruchomość możliwy
od z ulicy Strumykowej.
W najbliższej odległości znajdują się przystanki autobusowe linii 126, 133 oraz pętla autobusowa przy ulicy Mehoffera gdzie znajdują się przystanki autobusowe linii nr 101, 186, 509, 518, N01, N03, N13, N63. W bezpośrednim sąsiedztwie od strony wjazdu z ulicy Strumykowej znajduje się przedszkole publiczne, placówka sieci handlowa samoobsługowa, myjnia bezdotykowa.

Opis:

Przedmiotowe lokale znajdują się w budynku nr 4, położonym na działkach ewidencyjnych nr 41/8 i 44. Budynek położony jest na płaskim terenie uzbrojonym w sieć energetyczną, wodociągową, kanalizacyjną, telekomunikacyjną, sieć gazową z sieci miejskiej. Jest częścią zamkniętego kompleksu mieszkaniowego obejmującego trzy budynki mieszkalne wielorodzinne. Wjazd na teren kompleksu monitorowany.

Budynek wybudowany w 2010 r. (rok uzyskania pozwolenia na użytkowanie) w technologii tradycyjnej. Budynek jest czterokondygnacyjny z antresolą, podpiwniczony, w kształcie wieloboku o konturze litery „W”. Obiekt użytkowany jako lokale mieszkalne oraz lokale użytkowe na parterze budynku.

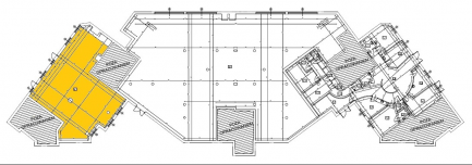
Lokal U3

Lokal znajduje się na parterze. Wejście do lokalu bezpośrednio z zewnątrz. Łączna powierzchnia lokalu 121,73 m2. Lokale U3 i U5 są połączone (brak ścianek działowych). Stan lokalu niewykończony (deweloperski):
posadzki: wylewka betonowa,
tynki wewnętrzne: tynk cementowy,
stolarka okienna zewnętrzna: profile aluminiowe,
drzwi wejściowe: profile aluminiowe.
Wymaga przeprowadzenia prac wykończeniowo/adaptacyjnych. Udział w nieruchomości wspólnej: 12173/1619204.

Lokal U5

Lokal znajduje się na parterze. Wejście do lokalu bezpośrednio z zewnątrz. Łączna powierzchnia lokalu 38,45 m2. Lokale U3 i U5 są połączone (brak ścianek działowych). Stan lokalu niewykończony (deweloperski):
posadzki: wylewka betonowa,
tynki wewnętrzne: tynk cementowy,
stolarka okienna zewnętrzna: profile aluminiowe,
drzwi wejściowe: profile aluminiowe.
Wymaga przeprowadzenia prac wykończeniowo/adaptacyjnych. Udział w nieruchomości wspólnej: 3845/1619204.

W przypadku zainteresowania nieruchomością lub potrzeby uzyskania dodatkowych informacji, prosimy o kontakt.

Ogłoszenie – prezentowana w Serwisie Aukcyjnym informacja nie będąca ofertą w rozumieniu art. 66 i nast. Kodeksu cywilnego, zawierająca dane określonej ruchomości, nieruchomości lub usługi. W przypadku Ogłoszenia, Uczestnik nie ma możliwości składania jakichkolwiek ofert na przedmioty lub usługi wskazane w Ogłoszeniu jak również ich nabycia za pośrednictwem Serwisu Aukcyjnego.

Informacje dodatkowe


W przypadku zainteresowania nieruchomością lub potrzeby uzyskania dodatkowych informacji, prosimy o kontakt z:

Iwona Woszczyk – Starszy Specjalista ds. zarządzania nieruchomościami

tel. komórkowy – 723 693 326,

e-mail: iwona.woszczyk@pkoleasing.pl


Aukcje promowane

BMW X6 M Competition
BMW X6 M Competition
Rok produkcji: 2021, Przebieg: 141 326 km, Pojemność silnika: 4 395 cm3
Aktualna cena:  177 100,00 PLN
(2026-04-10 13:00:00)

Lista ostatnich 10 najwyższych ofert

Login oferenta Kwota oferty Data złożenia oferty